事務所耐震工事中~進捗状況ご報告
UPDATE: 2015.02.03
事務所耐震工事中~!
最近お客様に、『事務所変ったんやね~』と言われるのですが、
今の事務所はあくまで仮事務所なんですよ~。
昨年末から事務所の耐震改修工事をしているんです。
現在の進捗状況をご報告~!!!


基礎の補強・筋交いを入れて壁を補強し、
さらに耐震金物を取り付けて地震の揺れに強い建物にしていきます。
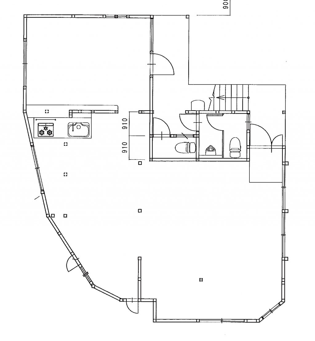
少し間取りも変更しました。
今までは、せっかくお客様に来ていただいても、
事務所の片隅でお話を聞かせていただく状態でしたが、
今回の改装で、新しくお客様との商談ルームを作ります。
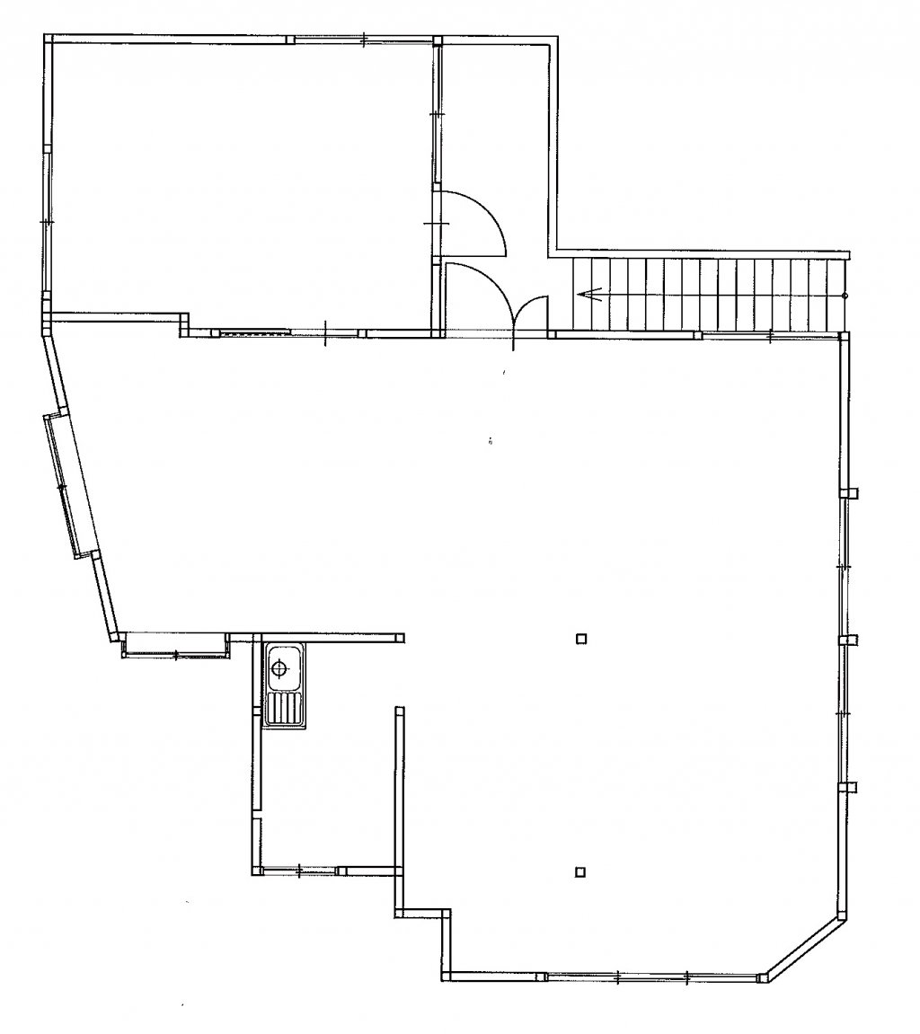
事務所の平面図(予定)です!


1階リフォーム部門 2階公共等工事部門
事務所側と商談ルームの間には、お客様に見て・体験していただける
システムキッチンを配置する予定です。
使い勝手やIHクッキングヒーターもお試しいただけます。



LIXIL【システムキッチン】リシェル
